- 产品详情
- 图片集锦
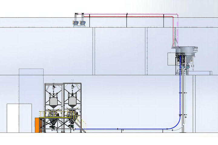
概述
负压稀相输送系统采用负压罗茨泵动力源,管道输送压力呈低真空状态,管道风速约10—35m/秒,物料在管道里呈雾状。负压输送起点压力等于或接近大气压,终点压力在-10至~50Kpa之间,管道真空度沿输送管道逐渐增高。负压稀相输送系统也称为真空稀相输送系统。
特点
1.输送真空压力低于环境压力,即使管道破损也不会造成物料泄露而对环境造成污染。
2.设备的制造、维护要求低,工人的可操作性强;可以长距离输送。
3.输送气体(一般为空气)直接取自大气,气体的温度即为环境温度;管道物料有一定的摩擦升温;
4.输送为连续式、亦可间断,管道内风速高,无物料积存;
5.可实现多点进料,多点卸料;
6.气体动力源一般为旋涡泵、罗茨真空泵,于物料无直接接触,使用寿命长;
7.对输送物料的适应性强,粉料、颗粒料均可顺利输送;特别适用于自粘性物料;
8.环境污染小,但对除尘面积要求高。
基本参数
| 空气速度: | 10m/s~35m/s |
| 输送能力: | zui大2~8t/h |
| 输送距离: | zui大20~100m |
| 输送高度: | zui大10~30m |
| 气源类型: | 罗茨真空泵、漩涡泵等 |







